Fakta

Stadsdel
  • Södermalm
Gatuadress
Tegelviksgatan 42
Ägarförhållande
  • AB Stadsholmen
Byggår
  • 1780
Storlek
  • 153 kvm
Våning
  • 3 tr. med hiss
Hyra
  • 340 000 kr/år inkl. VA & Värme. Exkl. moms och fastighetsskatt.

Fin lokal i kulturhistorisk fastighet från 1700 talet belägen i grönområde intill bostadskvarter och Hammarby kanal. Lokalen passar utmärkt för kontorsverksamhet där man vill sitta centralt men ändå i en lugn omgivning.

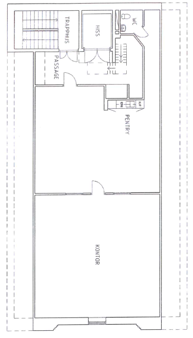
Planlösning med två större arbetsytor samt två mötesrum med glaspartier. Lokalen är inredd med trägolv och vitmålade väggar. Pentrydel med öppen planlösning mot kontorsyta. Wc med dusch. Hiss finns.

Fastighetens gårdsyta består av lummig grönskande miljö med stora gräsytor och många olika träd.  

Tillträde kan ske enligt överenskommelse.

Hyra 340 000 kr/år (ca 2 222 kr/ kvm/ år) inkl. uppvärmning och varmvatten, exkl. moms och fastighetsskatt. Fastighetsskatten ligger för närvarande på 46 100 kr/ år.

Rekommenderat antal personer enligt luftomsättning:
Ca 13 pers. (FTX ventilation)

Hyresgäst har eget el- och bredbandsabonnemang. Lokalen är utrustad med fibernät som erbjuder olika tjänster och hastigheter på bredbandet upp till 1000/1000 Mbit. Du väljer mellan olika tjänster och leverantörer på stadsholmen.zmarket.se.

Varmt välkommen!

Alla bilder