Fakta

Stadsdel
  • Gamla stan
Gatuadress
Trädgårdsgatan 7
Ägarförhållande
  • AB Stadsholmen
Byggår
  • 1700-tal
Storlek
  • 48 kvm
Våning
  • Gatuplan
Hyra
  • 16 000 kr/mån. ex moms

Fin kontorslokal, 48 kvm, lugnt belägen i hjärtat av Gamla stan.
Kontoret har en egen ingång från trevliga Trädgårdsgatan och också en entré från trapphuset. Innanför entrén från gatan finns en liten hall med ytterligare en dörr och gallergrind in till lokalen.
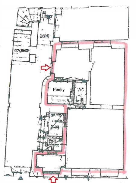
Kontoret har tre rum, ett mot gatan och ett rum mot en liten gård. Intill pentryt finns ett litet rum med plats för matbord. Två fönster vetter mot gatan och två mot gården. Alla fönster har låsbara vita galler.
Kontoret har ett fint trägolv, ljusa väggar och bröstpaneler i grå nyans. Pentry med micro. WC, svart/vit rutigt klinkergolv, kakel vid handfat, samt handdukstork.

Hyra 192 000 kr/år, dvs 16 000 kr/mån. ex moms 25% Fastighetsskatt tillkommer, f.n. 14 351 kr/år
Uppvärmning av lokalen sker via elradiatorer som är kopplade till hyresgästens elabonnemang.

Lokalen är utrustad med fibernät som erbjuder olika tjänster och hastigheter på bredbandet upp till 1000/1000 Mbit. Du väljer mellan olika tjänster och leverantörer på stadsholmen.zmarket.se

Fastigheten har mekanisk frånluftsventilation. Rekommenderad maximal personbelastning för lokalen är 3-4 personer, stadigvarande.

Information om fastigheten finns till höger under "Dokument".

Vi söker en momspliktig kontorsverksamhet. Deposition tas ut som säkerhet beroende på företagets ekonomi.

Välkommen att boka tid för visning!

Alla bilder